Project Details
cornell university department of architecture
b.arch second year, fall 2023
ARCH 2613: STRUCTURAL SYSTEMS ii
iNSTRUCTOR: mARK CRUVELLIER
collaborators: Jay pae, mathangi sriram
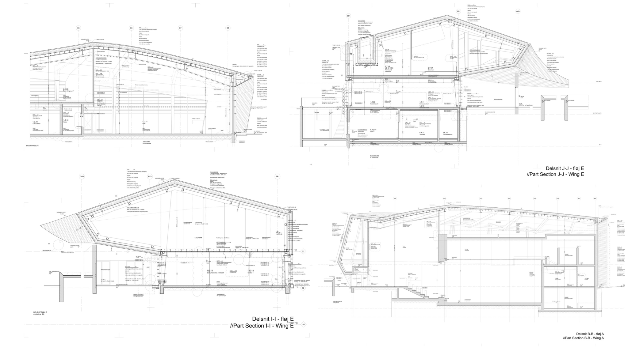
This project looks at the design of Den Blå Planet, Denmark’s National Aquarium by 3XN, noted for its whirlpool shape. We studied and built a scale model to examine how 54 unique frames, complex bracing systems, and detailed façades come together to form a dynamic and sustainable architectural landmark.

Structural Analysis
Den Blå Planet operates as a field of rigid steel frames rather than a continuous shell. Each frame shares a common radial center yet varies in depth, span, and pitch, allowing curvature to emerge through repetition rather than bending. Cross-bracing and purlins stabilize the system, transforming geometric variation into structural performance.
Physical Model Interpretation
The physical model clarified relationships that drawings alone could not. Small shifts in frame geometry produced outsized spatial and structural effects, revealing how local differences accumulate into a coherent spiral. Modeling became a way to test how precision, rather than smoothness, generates fluid form.
Assembly functioned as structural verification. As cross-bracing was introduced, the model transitioned from fragile to rigid, making lateral resistance legible through touch. This incremental stiffening reframed bracing as an active structural participant, not a secondary support.

“It’s funny how every kid’s favorite part of the aquarium is the whale——the one hanging from the ceiling. The irony is, there isn’t even a real whale in the entire aquarium.”
– Val warke, upon seeing Blåhval the whale
The final model presents structure as both generator and legible artifact. By selectively exposing frames, bracing, and facade supports, the project reveals how Den Blå Planet’s geometry is produced through disciplined variation and repeatable logic, not surface manipulation.













